Porzione di trifamiliare in vendita

Trento, Via Giacomo Roberti - Villazzano
€ 420.000
5 locali 5 locali
167 Mq 167 Mq
2 bagni 2 bagni

Porzione di trifamiliare in vendita

Trento, Via Giacomo Roberti - Villazzano

Descrizione annuncio

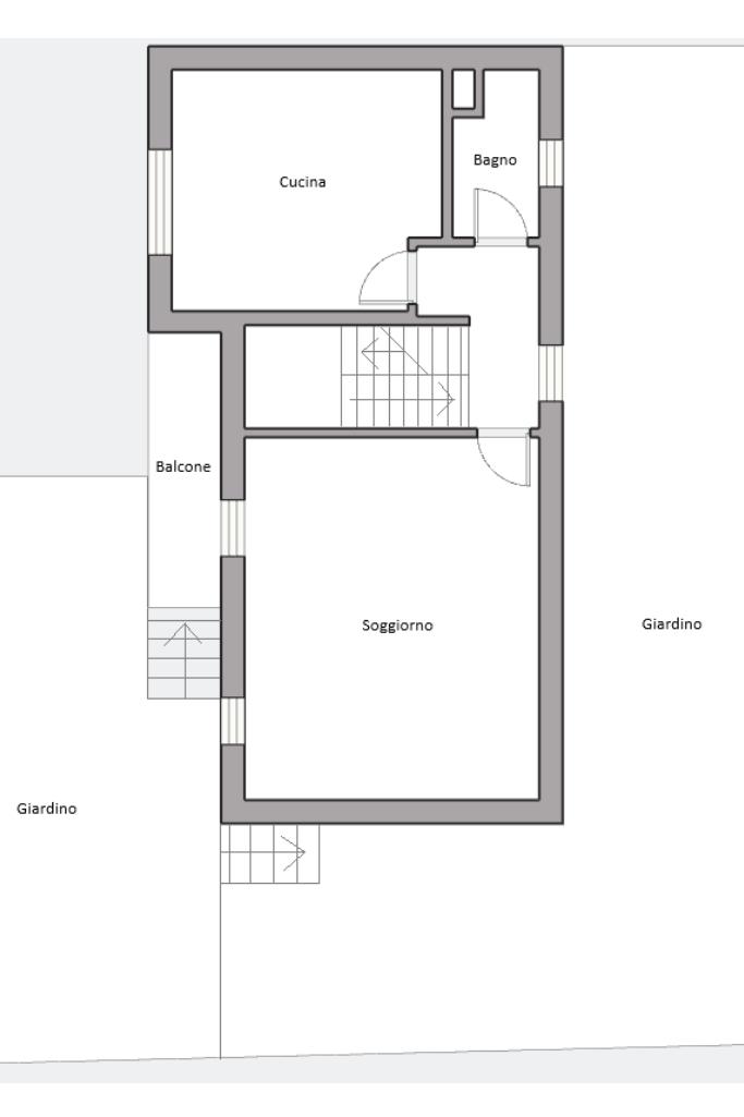
SAN ROCCO - Proponiamo in vendita una villa a schiera disposta su tre livelli, situata in contesto tranquillo e ben servito. L’immobile è circondato da un giardino privato di circa 200 mq e dispone di balconi sia sulla zona giorno che sulla zona notte, ideale per chi cerca comfort e spazi esterni vivibili.

Si accede alla proprietà attraverso il cortile privato, che conduce sia all’ingresso principale che al garage singolo. Al piano terra si trovano inoltre:

Locale caldaia

Spazio sottoscala adibito a cantina

Area parcheggio privata nel cortile

Tramite scala interna si raggiunge il primo piano, dove si sviluppa la zona giorno, composta da:

Ampio e luminoso soggiorno con caminetto a legna e accesso diretto al giardino anteriore

Cucina abitabile

Bagno finestrato

Disimpegno che collega gli ambienti e permette l’accesso al giardino posteriore

La zona notte è composta da:

Tre camere da letto: una matrimoniale con balcone privato, una doppia e una seconda matrimoniale che condividono un balcone

Secondo bagno

sono stati fatti interventi di ristrutturazione tra cui la sostituzione dei serramenti, installazione di un cappotto termico sulla parete sud, sostituzione della caldaia

Per ulteriori informazioni contattateci in agenzia ai seguenti recapiti:

0461.084433

tncc3

Seguiteci sui nostri canali social, sarete così aggiornati sulle nostre proposte di vendita e di locazione!

Facebook: Agenzia Tecnocasa Trento Collina Est

Instagram: @tecnocasatrentocollinaest

Mostra tutto

Nelle vicinanze

Trasporto pubblico Trasporto pubblico
Villazzano
Villazzano
1,3 Km
stazione di Trento San Bartolameo
stazione di Trento San Bartolameo
1,6 Km
San Rocco / Piazza
San Rocco / Piazza
130 m
Trasporto pubblico
170 m
Ricariche auto elettriche Ricariche auto elettriche
Supermercato Poli Trento | Neogy
2,1 Km
Cassa di Trento largo medaglie d'oro | Neogy
2,7 Km
Scuole Scuole
Associazione pedagogica Steineriana
860 m
Scuola Elementare
1,1 Km
Scuola Primaria G. Tomasi
1,3 Km
Scuole
1,4 Km
Othmar Winkler
1,9 Km
Farmacia Farmacia
Farmacia Madonna Bianca
1,2 Km
Farmacia Bolego Villazzano
1,6 Km
Tecnisan articoli sanitari
1,8 Km
Farmacia Clarina
2,2 Km
Farmacia "San Bartolameo"
2,4 Km
Ospedali Ospedali
Santa Chiara
2,5 Km
Guardia Medica
2,7 Km
Centro di Protonterapia
2,9 Km
Supermercati Supermercati
Famiglia Cooperativa
1,3 Km
Conad City
1,3 Km
MD
1,4 Km
ENI Shop
1,6 Km
Coop Superstore
1,7 Km
Negozi Negozi
Panificio
1,2 Km
Piccolo Bazar
1,3 Km
Negozi
1,4 Km
Merceria Adriana
2,1 Km
La Bottega del Pane
2,4 Km
Bar Bar
Bar
1,2 Km
Bar Groff
1,4 Km
Bar Locanda "La Canonica"
1,5 Km
Caffè ENI
1,6 Km
Discoteca Rosalpina
1,7 Km
Ristoranti Ristoranti
Bar Ristorante "alla Baracca"
890 m
La Terrazza
1,3 Km
Ristorante Bar Pizzeria
1,3 Km
Tentazioni
1,4 Km
Ristorante Pizzeria Rosalpina
1,6 Km
Mostra tutto

Caratteristiche

Rif.:
61114999
Piano:
Su più livelli di 3
Totale piani:
3
Box:
1
Posti auto:
2
Balconi:
3
Mostra tutto
Prezzo Prezzo
€ 420.000
Rata mutuo Rata mutuo
€ 1.924 / mese
Proponi il tuo prezzoProponi il tuo prezzo

Classe Energetica

D
D
D
D
D
D
D
D
D
EP invernale del fabbricato:
EP estiva del fabbricato:
Anno di costruzione:
1978
Riscaldamento:
Autonomo
Tipo impianto:
A radiatori
Tipo alimentazione:
Metano

Ti interessa visionare l'immobile?

Fissa un appuntamento  Fissa un appuntamento

Richiedi informazioni

* Questi campi sono obbligatori

Calcola il tuo mutuo

Semplice e senza impegno
Anticipo

( % )
Mutuo

( % )

pochi semplici passi

inserisci i tuoi dati
Questionario completato
Grazie per aver richiesto un appuntamento senza impegno con un nostro Consulente del Credito e Assicurativo.

Hai inserito correttamente tutti i dati necessari e a breve riceverai una e-mail con un link da convalidare per inviare i tuoi dati.
Affiliato
Studio Trento Quattro Srl
Via Della Resistenza, 17 38123 Trento (TN)
Via Della Resistenza, 17 38123 Trento (TN)
Zona: Trento Collina Est - Mattarello
Mostra su mappa
Orari: Dal Lunedì al Venerdì dalle 9:00 alle 13:00 e dalle 15:00 alle 19:30 , Sabato mattina dalle 9:00 alle 13:00 pomeriggio e Domenica chiuso
Affiliato
Studio Trento Quattro Srl
Via Della Resistenza, 17 38123 Trento (TN)

2025 Tecnocasa Franchising S.p.A. - P. IVA 08365160152 - Via Monte Bianco 60/A 20089 Rozzano (MI). Ogni agenzia ha un proprio titolare ed è autonoma. Privacy policy | Policy utilizzo | Cookie policy